(561) 406 8020
info@immersivespaces.co
PO Box 2448 Palm Beach FL 33480
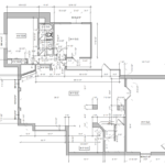
Our As-Built Modeling Service provides accurate, detailed, and editable documentation for as-built construction projects. Using advanced scanning and modeling technology, we deliver outputs with up to 99% accuracy, ensuring precision for architects, interior designers, remodelers, and light commercial designers. Beyond basic floor plans, our service includes key dimensions and a comprehensive schedule of quantities for floors, walls, doors, windows, and countertops—ideal for bidding, takeoffs, and project planning. We offer outputs in industry-standard formats, including editable AutoCAD files for 2D design and sharable PDFs for collaboration. Fully compatible with leading design programs such as SketchUp, Chief Architect, Revit, and more, our service saves time, reduces costs, and simplifies even the most complex projects.
Our services are designed to offer flexibility and precision to meet your project needs. Please note the following:
Order Minimums: 3D CAD models and Measurement Reports have a minimum charge of $50, while our 2D floor plans have a $30 minimum charge.
Exteriors: Exterior and interior scans are priced at $0.35 per square foot, while exterior-only scans are $0.25 per square foot.
Multiple Formats: Each output format is priced individually. If you require multiple formats, the total price will be the sum of all formats ordered.
Rush Delivery: Expedited turnaround times are available for an additional 25%. While we prioritize rush orders, delivery times cannot be guaranteed.
Let us know if you have any specific needs or deadlines, and we’ll do our best to accommodate your request!
